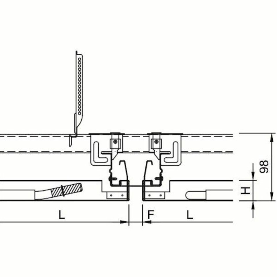
Le plafond suspendu avec ossature cachée et joint ouvert permet d'obtenir une température agréable et confortable. Le joint ouvert entre les panneaux de plafond n'a pas seulement un effet architectural, mais peut également être utilisé pour le passage de l'air ainsi que pour l'installation indépendante de luminaires ou d'autres éléments encastrés. Les panneaux de plafond, qui se manipulent sans outils, peuvent être personnalisés en termes de forme et de dimension. Sur demande, il est possible de combiner des zones thermiquement actives et inactives.
Travail: Salles communes, Salle de réunion, scènes et studios, Immeubles de bureaux, Radio
Magasins: Centres commerciaux, Surface de vente, Banques, Cinémas et multiplexes, Musées et galeries, Espace commun
Éducation: Bibliothèques, Bibliothèque, Universités et établissements d’enseignement supérieur, Écoles
Transport: Aéroports, Gares ferroviaires
Institution publiques: Tribunaux et établissements pénitentiaires, Mairies, bâtiments gouvernementaux et administratifs
Santé: Pharmacie, Cliniques et hôpitaux
Hôtels: Hôtels et complexes hôteliers
Industrie: Usines et sites de production
Zones de circulation: Entrée

