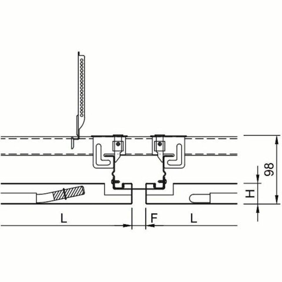
This Hook-On ceiling with concealed substructure and open joints creates a pleasant and comfortable temperature in your rooms. The open joint between the ceiling panels can also be used for airflow or the independent installation of luminaires or other fixtures. The shape and size of the ceiling panels can individually be designed and operated without tools. On demand, thermally active and passive areas can be combined.











Circularity: All components can be reused/refurbished
Life Cycle Assessment: EPD according to ISO 14025 and EN 15804
Cradle to Cradle Certified®: C2C Certified® Silver
Work: Common Rooms, Facilities for Meetings, Conventions and Conferences, Stage and Studio Rooms, Broadcasting Rooms, Television Studios
Businesses, Recreation and Culture: Sales Areas, Places of Assembly
Education: Research Rooms
Healthcare: Pharmacies (Production)
Public Areas: Entrance Areas















