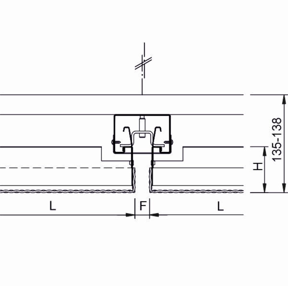
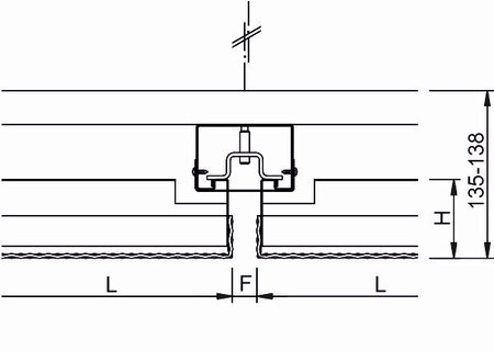
Le système LMD-St 213 convainc par sa liberté de conception et sa grande facilité de révision. Les types, formes et dimensions de mailles les plus divers sont à votre disposition - quel que soit le design que vous choisissez, les panneaux de plafond sont certainement amovibles et, sur demande, également rabattables. Vous pouvez mettre l'accent sur l'aspect visuel avec des joints accentués jusqu'à 30 mm ou des panneaux de plafond en métal déployé rétroéclairés.
Magasins: Centres commerciaux, Musées et galeries, Piscines et centres aquatiques, Espace commun, Banques, Cinémas et multiplexes, Surface de vente, Stades et arénas
Travail: Locaux techniques, Salles communes, Salle de réunion, Immeubles de bureaux
Transport: Gares ferroviaires, Aéroports
Institution publiques: Tribunaux et établissements pénitentiaires, Mairies, bâtiments gouvernementaux et administratifs
Éducation: Bibliothèques
Zones de circulation: Entrée
Hôtels: Hôtels et complexes hôteliers
