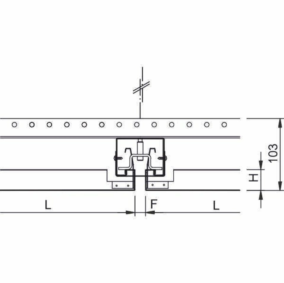
Le plafond suspendu LMD-E 213 WL est adapté aux zones extérieures couvertes, aux gares, aux parkings souterrains, etc. pour des charges de pression et de succion du vent en standard jusqu'à 100 kg/m². Des exigences plus élevées pour le système de plafond peuvent être mises en oeuvre en fonction du projet. Avec ce plafond extérieur, les joints accentués créent une vue homogène du plafond avec une ossature cachée. Le système de plafond facile à monter avec possibilité de révision est doté du revêtement anticorrosion de haute qualité Meteo.
Transport: Métros et Tunnels, Gares ferroviaires, Aéroports
Magasins: Stades et arénas
Zones de circulation: Extérieur
