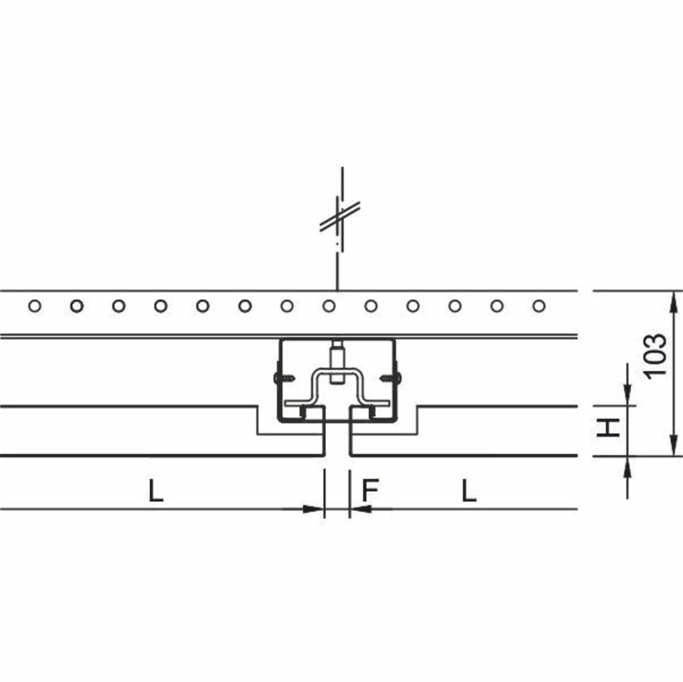
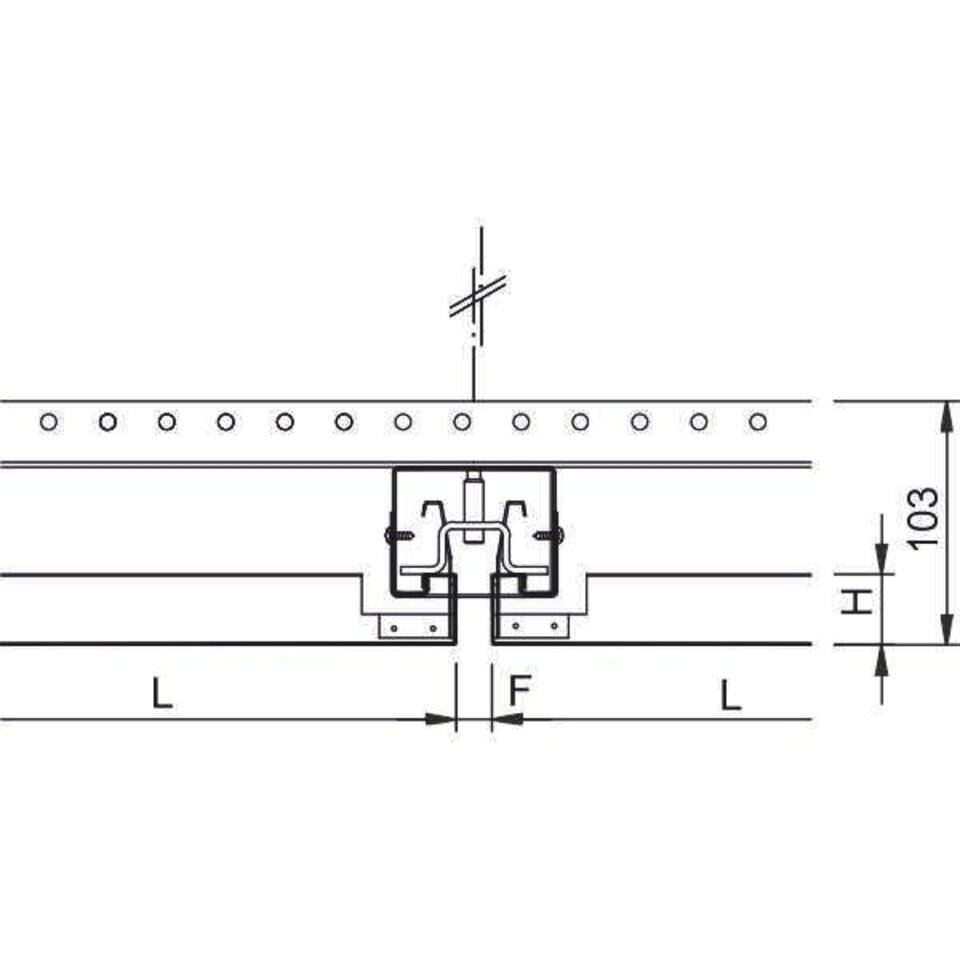
The Hook-On ceiling LMD-E 213 WL is suitable for roofed exterior areas, railway stations, underground car parks etc. for wind pressure and suction loads up to 100 kg/m² in standard execution. Local weather and project-specific conditions have to be considered during planning. Accentuated joints of this exterior ceiling generate a homogeneous ceiling surface with concealed substructure. This installation-friendly system has a maintenance option and is furnished with the high-grade Meteo corrosion protection coating.
Transport: Subways and Tunnels, Railway Stations, Airports
Businesses, Recreation and Culture: Stadiums and Arenas
Public Areas: Exterior Areas
