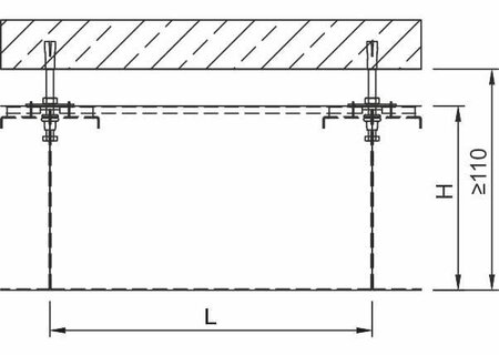
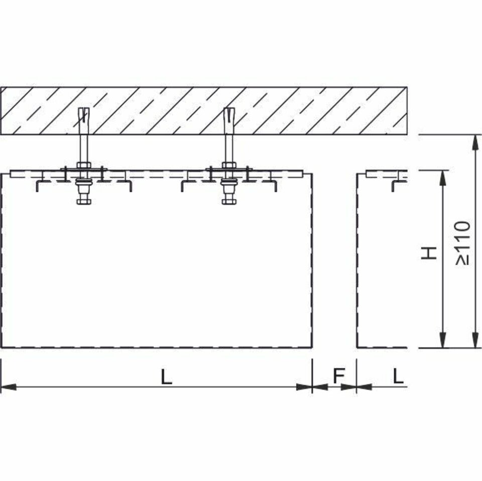
Diese Lamellendecke zeichnet sich durch eine sehr geringe Abhängehöhe aus, da die spezielle Abhängung ohne Unterkonstruktionsprofile direkt an der Rohdecke befestigt werden kann. So ist die Decke auch für niedrige Raumhöhen bestens geeignet. Frei wählbare Lamellenabstände und -abmessungen lassen Ihnen Freiraum für Gestaltungsmöglichkeiten. Der Deckenhohlraum zwischen den Lamellen ist frei einsehbar und kann für verschiedene Installationen genutzt werden..
Arbeit: Besprechungs-, Tagungs- und Konferenzräume, Bühnen- und Studioräume, Räume für Rundfunk- und Fernsehproduktion, Versammlungsräume, Aufenthaltsräume, Bürogebäude
Geschäfte, Freizeit und Kultur: Einkaufszentren, Museen und Galerien, Versammlungsstätten, Banken, Kino und Multiplex-Kinos, Konzerthäuser, Theater und Opern, Verkaufsflächen
Bildung: Bibliothek, Forschungsräume
Transport: Bahnhöfe, Flughäfen
Öffentliche Einrichtungen: Gerichte und Justizvollzugsanstalten, Rathäuser, Regierungs- und Verwaltungsgebäude
Hotels und Gastronomie: Hotels und Resorts, Gastronomie
Verkehrsflächen: Eingangsbereiche

