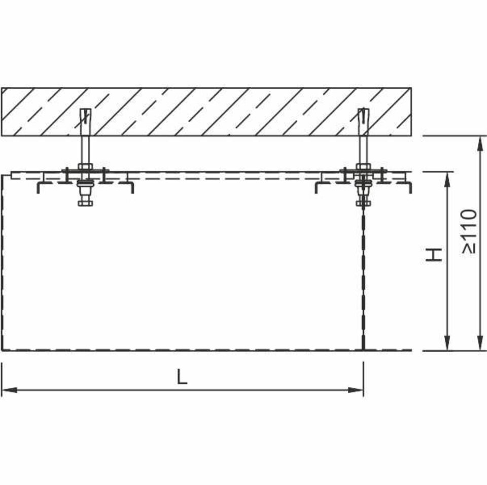
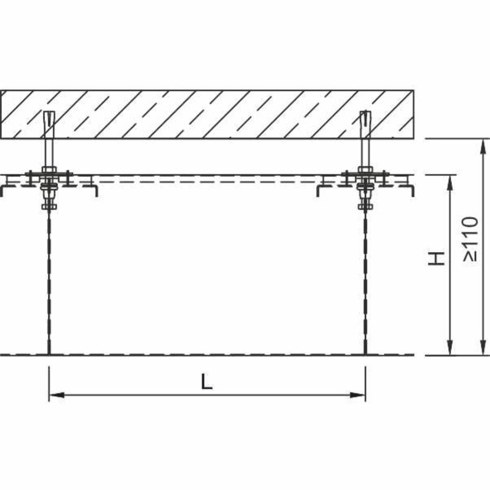
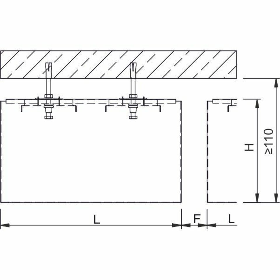
This baffle ceiling impresses with its very low suspension height – the special suspension without substructure profiles is directly fastened to the concrete ceiling. Thus, the ceiling is the appropriate solution for low room heights. Freely selectable baffle distances and sizes guarantee design freedom. The visible ceiling void between the baffles can be used for diverse installations.
Work: Facilities for Meetings, Conventions and Conferences, Stage and Studio Rooms, Broadcasting Rooms, Television Studios, Assembly Rooms, Common Rooms, Office Buildings
Businesses, Recreation and Culture: Shopping Centres, Museums and Galleries, Places of Assembly, Banks, Cinemas and Multiplex Theatres, Concert Halls, Theatres and Opera Houses, Sales Areas
Education: Libraries, Research Rooms
Transport: Railway Stations, Airports
Public Institutions: Courts and Correctional Facilities, Town Halls, Government and Administrative Buildings
Hotels and Gastronomy: Hotels and Resorts, Restaurants and Catering Facilities
Public Areas: Entrance Areas

