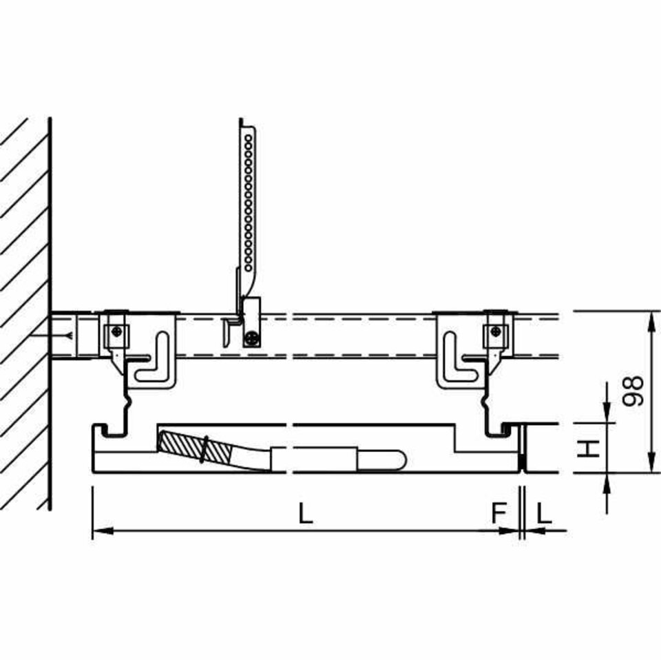
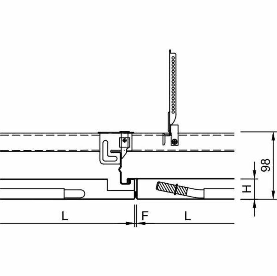
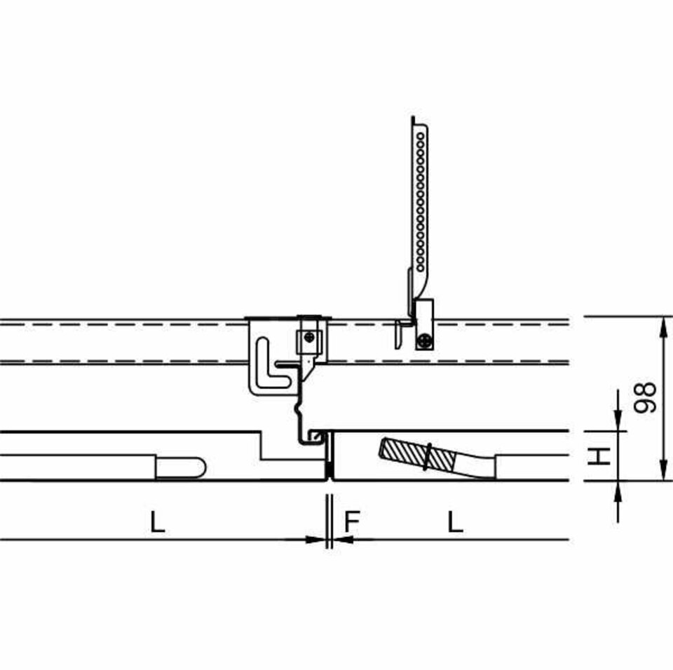
Diese Einhängedecke schafft durch Strahlungsheizung und -kühlung auf wirtschaftliche Weise ein angenehmes Raumklima. Überlappend eingehängte Metalldeckenplatten erzeugen eine homogene Deckenansicht mit verdeckter Unterkonstruktion. Plattenformen und -größen sind variabel und eröffnen gestalterische Freiheiten. Für Revisionszwecke lassen sich die Deckenplatten einfach und werkzeuglos abnehmen. Auf Wunsch können auch thermisch aktive und passive Bereiche kombiniert werden.
Arbeit: Besprechungs-, Tagungs- und Konferenzräume, Bühnen- und Studioräume, Räume für Rundfunk- und Fernsehproduktion, Bürogebäude, Aufenthaltsräume, Versammlungsräume
Geschäfte, Freizeit und Kultur: Einkaufszentren, Verkaufsflächen, Banken, Kino und Multiplex-Kinos, Museen und Galerien, Versammlungsstätten
Bildung: Bibliothek, Hochschulen und Universitäten, Schulen, Forschungsräume
Gesundheit: Apotheken (Herstellung), Kliniken und Krankenhäuser, Labore & Forschung, Operationssäle, Reinräume (Pharmazie und Medizintechnik)
Öffentliche Einrichtungen: Gerichte und Justizvollzugsanstalten, Rathäuser, Regierungs- und Verwaltungsgebäude
Industrie: Labore & Forschung, Fabriken und Produktionsstätten, Reinräume (Elektronik und Halbleitertechnik)
Transport: Flughäfen, Bahnhöfe
Hotels und Gastronomie: Hotels und Resorts
Verkehrsflächen: Eingangsbereiche

