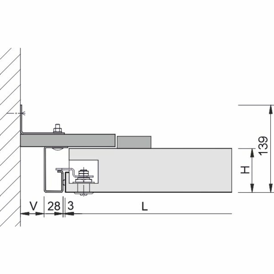
The ceiling elements – with or without mineral wool – are positioned in G-profiles. They can be individually swung down and slid by means of a dismantling tool – no additional ceiling void is necessary. Up to three ceiling elements can be moved together to receive a large inspection opening. Thanks to an adjustable wall connection, an excellent compensation of tolerances on the wall in possible. Stable hinging hooks offer maximum security against unintended lifting.
Healthcare: Clinics and Hospitals, Laboratories and Research Facilities
Work: Data Centres and IT facilities, Utility Rooms
Businesses, Recreation and Culture: Places of Assembly
Public Areas: Escape Routes
Education: Research Rooms
Industry: Laboratories and Research Facilities
Hotels and Gastronomy: Hotels and Resorts
Public Institutions

