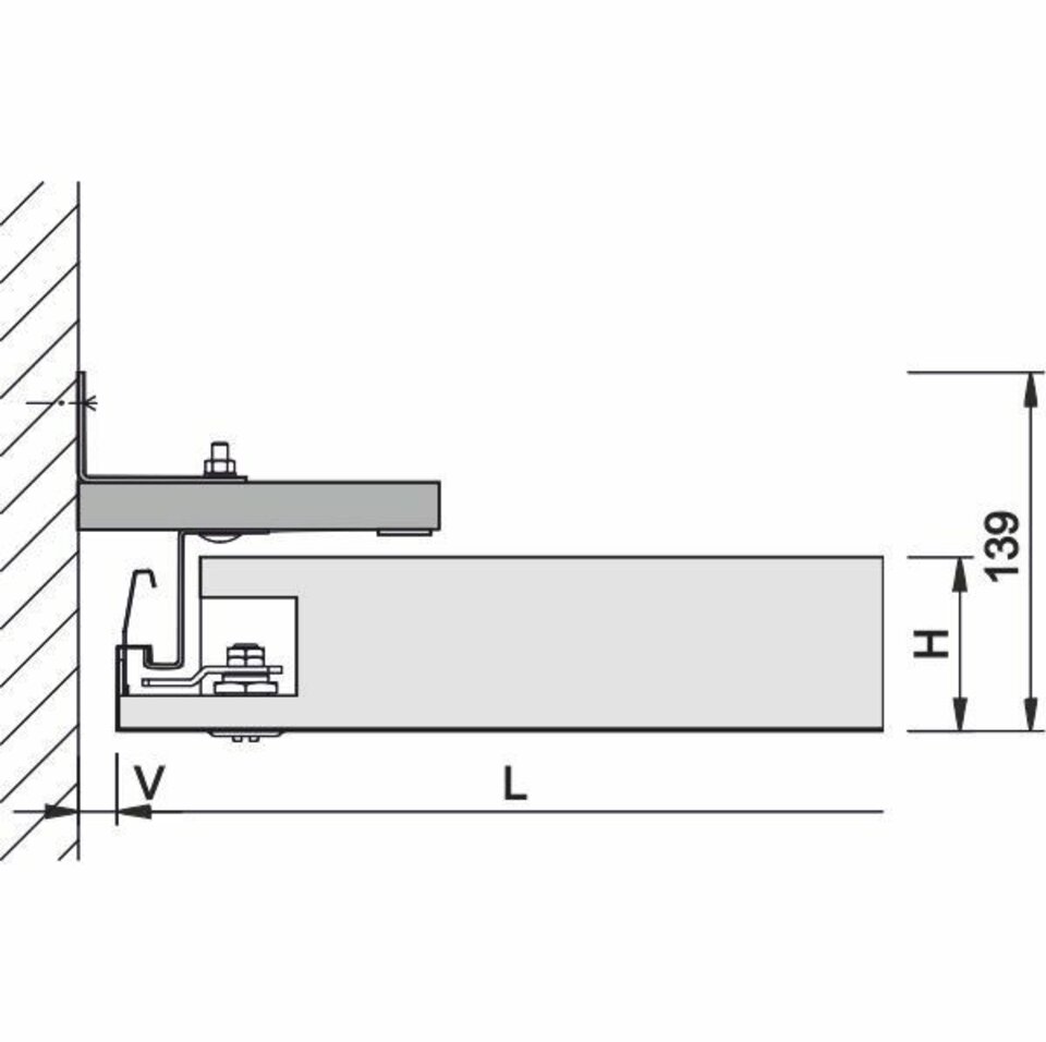
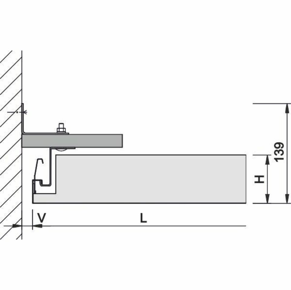
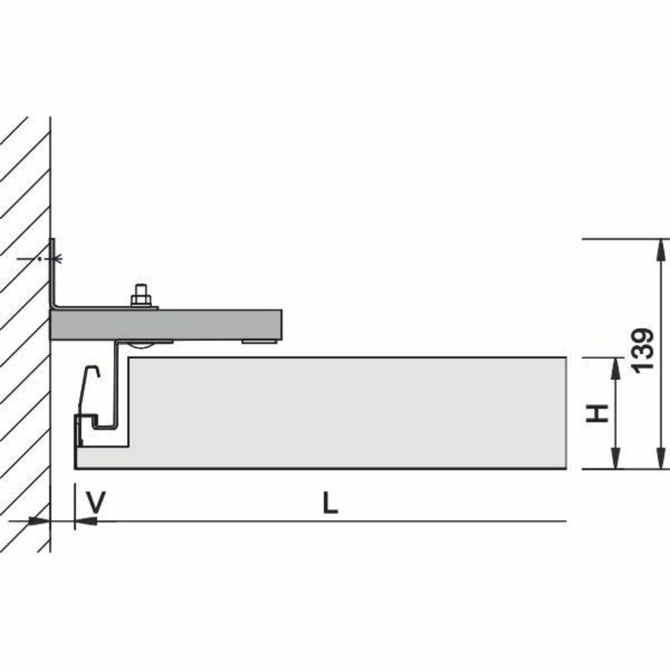
The ceiling elements with mineral wool are hooked onto carrier rails on both sides. Each ceiling element can be swung down and slid along the corridor. The ceiling can be opened without the need for any tools. Moreover, tolerances on the wall can be compensated. No additional ceiling void is necessary for maintenance works. Lockable elements are available for areas with increased safety requirements.
Healthcare: Clinics and Hospitals, Laboratories and Research Facilities
Work: Data Centres and IT facilities, Utility Rooms
Businesses, Recreation and Culture: Places of Assembly
Public Areas: Escape Routes
Education: Research Rooms
Industry: Laboratories and Research Facilities
Hotels and Gastronomy: Hotels and Resorts
Public Institutions

