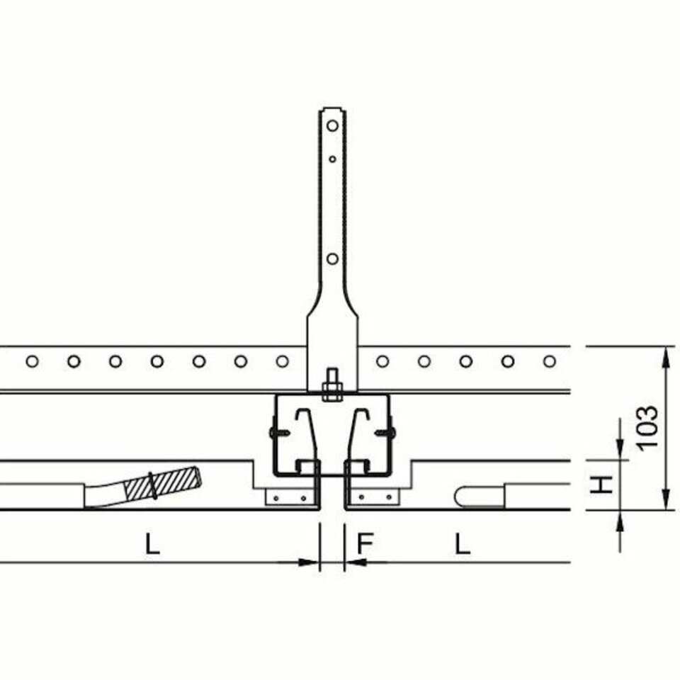
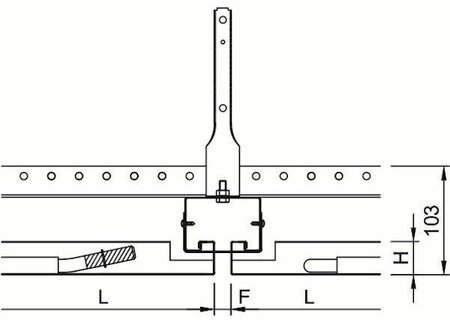
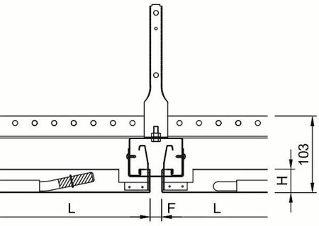
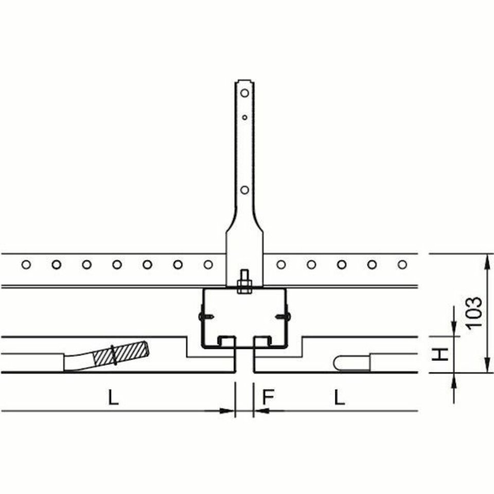
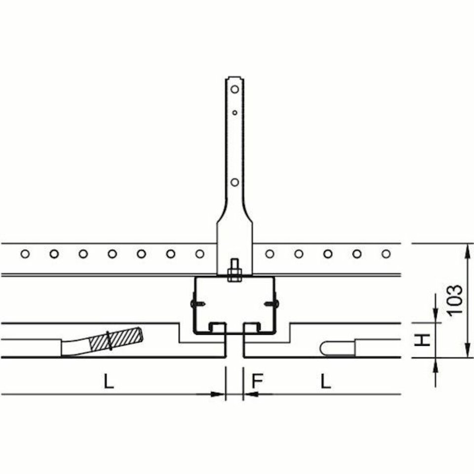
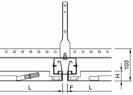
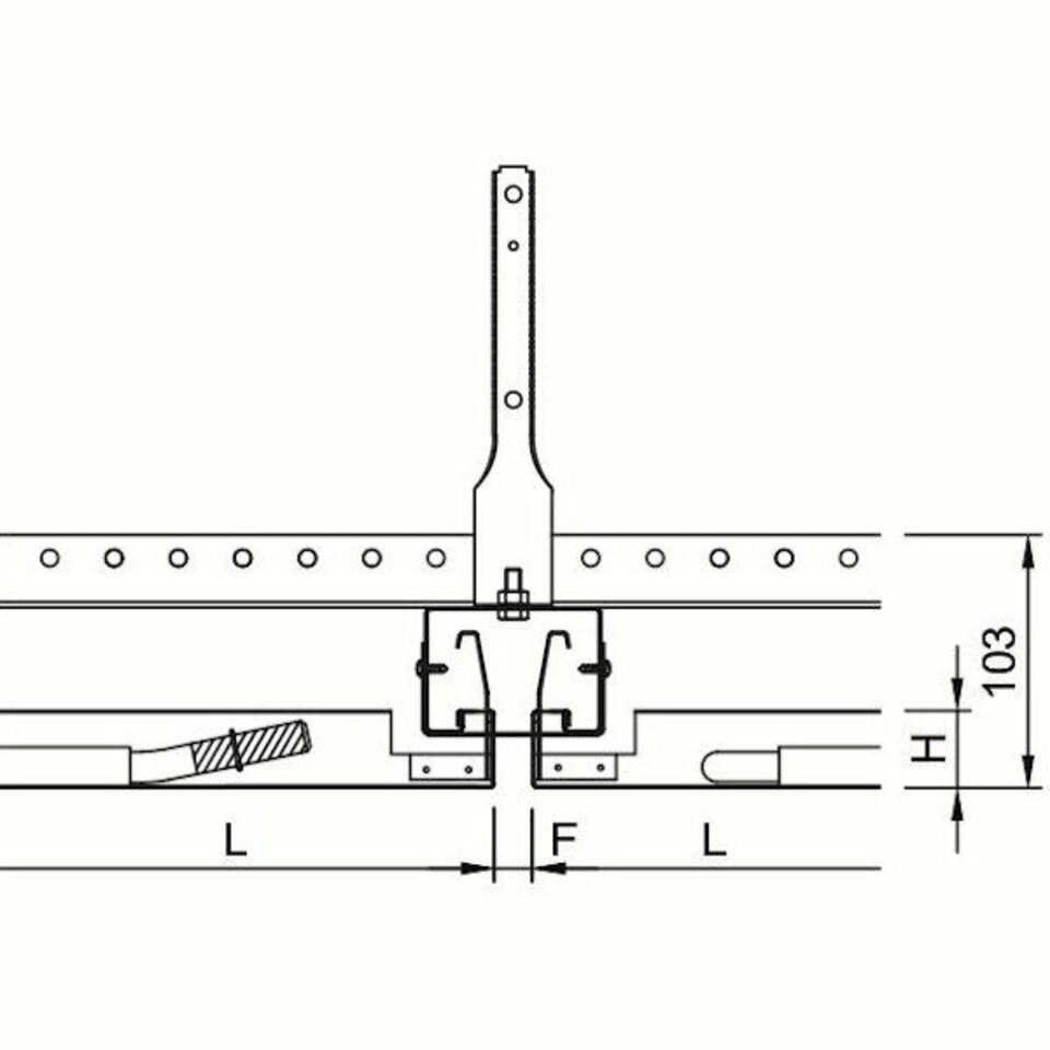
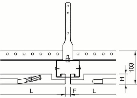
The heated/chilled Hook-On ceiling Plafotherm® E 213 is characterised by a homogeneous ceiling surface with accentuated joints. Your rooms are effectively heated and chilled by means of radiation. Thus, a pleasant room climate is created. The Hook-On ceiling panels can individually and variably be designed: a multitude of panel sizes and shapes is possible. The ceiling panels can be removed or swung down and slid without tools to guarantee a quick access to the ceiling void for maintenance works. A combination of thermally active and passive areas is possible.
Businesses, Recreation and Culture: Shopping Centres, Sales Areas, Banks, Cinemas and Multiplex Theatres, Museums and Galleries, Sports Halls and Gymnasiums, Places of Assembly
Work: Common Rooms, Facilities for Meetings, Conventions and Conferences, Stage and Studio Rooms, Office Buildings, Broadcasting Rooms, Television Studios
Education: Libraries, Research Rooms, Universities and Higher Education Buildings, Schools
Transport: Airports, Railway Stations
Public Institutions: Courts and Correctional Facilities, Town Halls, Government and Administrative Buildings
Healthcare: Pharmacies (Production), Clinics and Hospitals
Hotels and Gastronomy: Hotels and Resorts
Industry: Factories and Production Facilities
Public Areas: Entrance Areas

