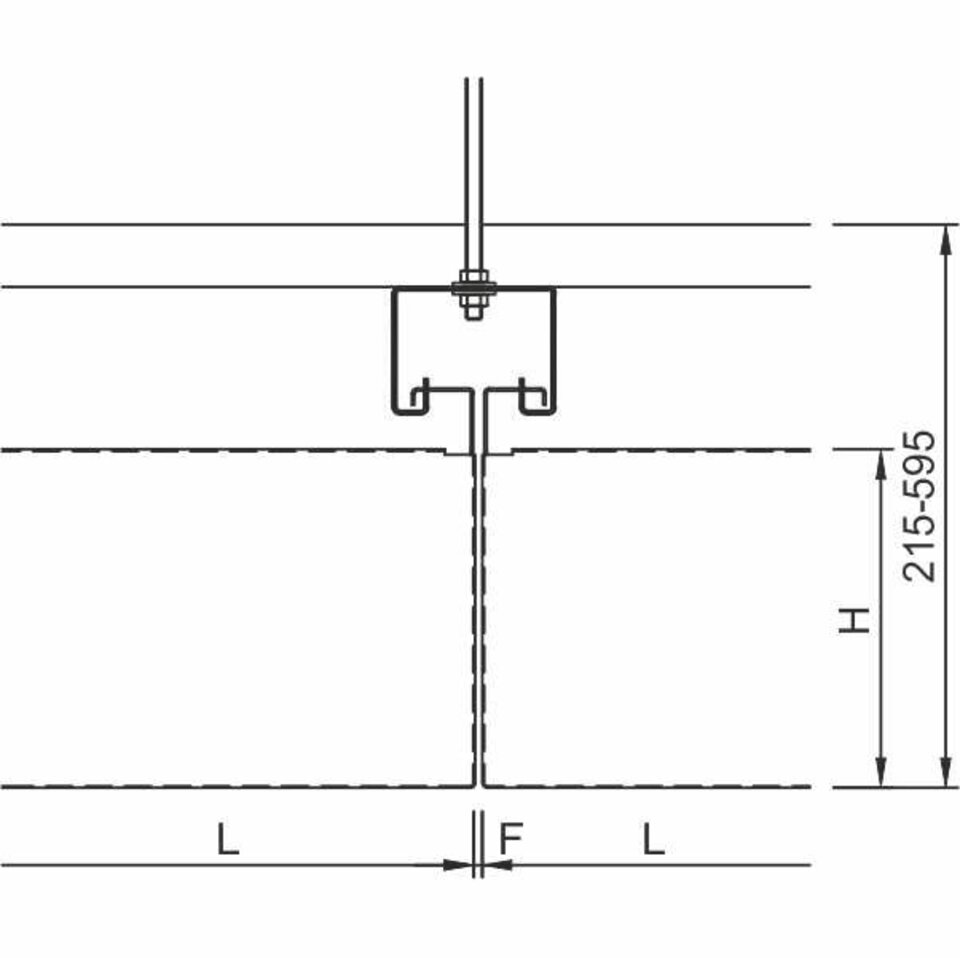
This high-grade baffle ceiling is especially suitable for areas with increased maintenance demands. Due to movable two-piece baffles, you can comfortably reach the ceiling void. The linear baffles can quickly and easily be installed in different sizes and centre distances. Free spaces between the baffles can be used for different installations such as luminaires, sprinklers or for the suspension of signs.
Businesses, Recreation and Culture: Shopping Centres, Museums and Galleries, Stadiums and Arenas, Places of Assembly, Banks, Cinemas and Multiplex Theatres, Concert Halls, Theatres and Opera Houses, Sales Areas
Work: Facilities for Meetings, Conventions and Conferences, Stage and Studio Rooms, Broadcasting Rooms, Television Studios, Assembly Rooms, Common Rooms, Office Buildings
Transport: Airports, Railway Stations
Education: Libraries, Research Rooms
Public Institutions: Courts and Correctional Facilities, Town Halls, Government and Administrative Buildings
Hotels and Gastronomy: Hotels and Resorts, Restaurants and Catering Facilities
Public Areas: Entrance Areas

