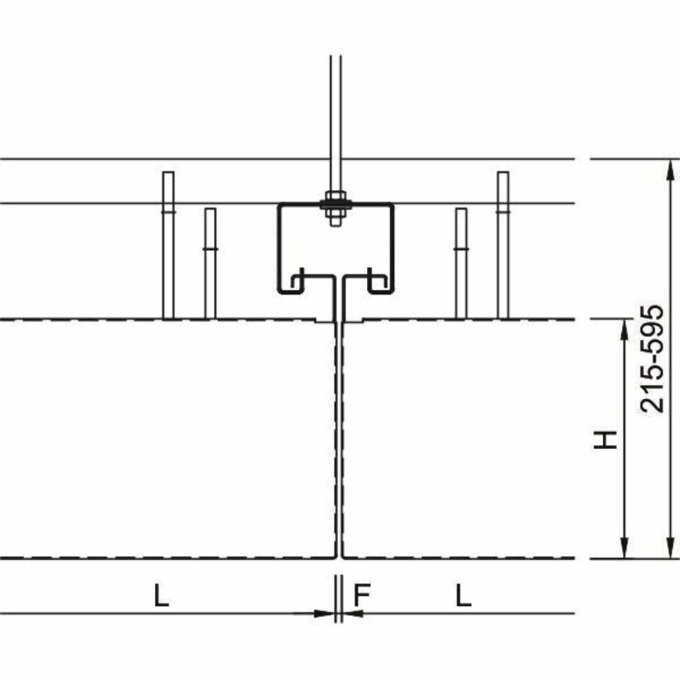
This linear baffle ceiling is especially suitable for areas with increased maintenance demands. Thanks to movable baffles, you can comfortably reach the ceiling void. The open construction guarantees high cooling capacities and variable design options. Create unique appearances in your well-tempered rooms by means of freely selectable centre distances and baffle sizes. The ceiling void between the baffles can be used for installations. The metal baffles can quickly be installed – a combination with passive baffles is also possible.
Work: Common Rooms, Facilities for Meetings, Conventions and Conferences, Stage and Studio Rooms, Office Buildings, Broadcasting Rooms, Television Studios, Assembly Rooms
Businesses, Recreation and Culture: Shopping Centres, Sales Areas, Banks, Cinemas and Multiplex Theatres, Concert Halls, Theatres and Opera Houses, Museums and Galleries, Places of Assembly
Education: Libraries, Research Rooms, Universities and Higher Education Buildings, Schools
Hotels and Gastronomy: Hotels and Resorts, Restaurants and Catering Facilities
Transport: Airports, Railway Stations
Public Institutions: Courts and Correctional Facilities, Town Halls, Government and Administrative Buildings
Public Areas: Entrance Areas

