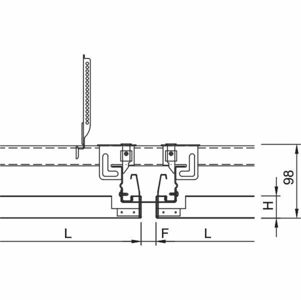
A concealed substructure and open joints exceeding 10 mm characterise this Hook-On ceiling. The open joints can also be used for independent installation of luminaires or fixtures. Variable joint distances and flexible panel shapes and sizes ensure individual design options. The Hook-On ceiling panels are very maintenance-friendly: they can be removed or swung down without the need for any tools.
Businesses, Recreation and Culture: Swimming Pools and Aquatic Centres, Banks, Places of Assembly, Shopping Centres, Cinemas and Multiplex Theatres, Museums and Galleries, Sales Areas
Work: Facilities for Meetings, Conventions and Conferences, Office Buildings, Common Rooms, Assembly Rooms
Education: Universities and Higher Education Buildings, Schools, Research Rooms
Transport: Railway Stations, Airports
Public Institutions: Courts and Correctional Facilities, Town Halls, Government and Administrative Buildings
Healthcare: Pharmacies (Production), Clinics and Hospitals
Hotels and Gastronomy: Hotels and Resorts
Industry: Factories and Production Facilities
Public Areas: Entrance Areas

