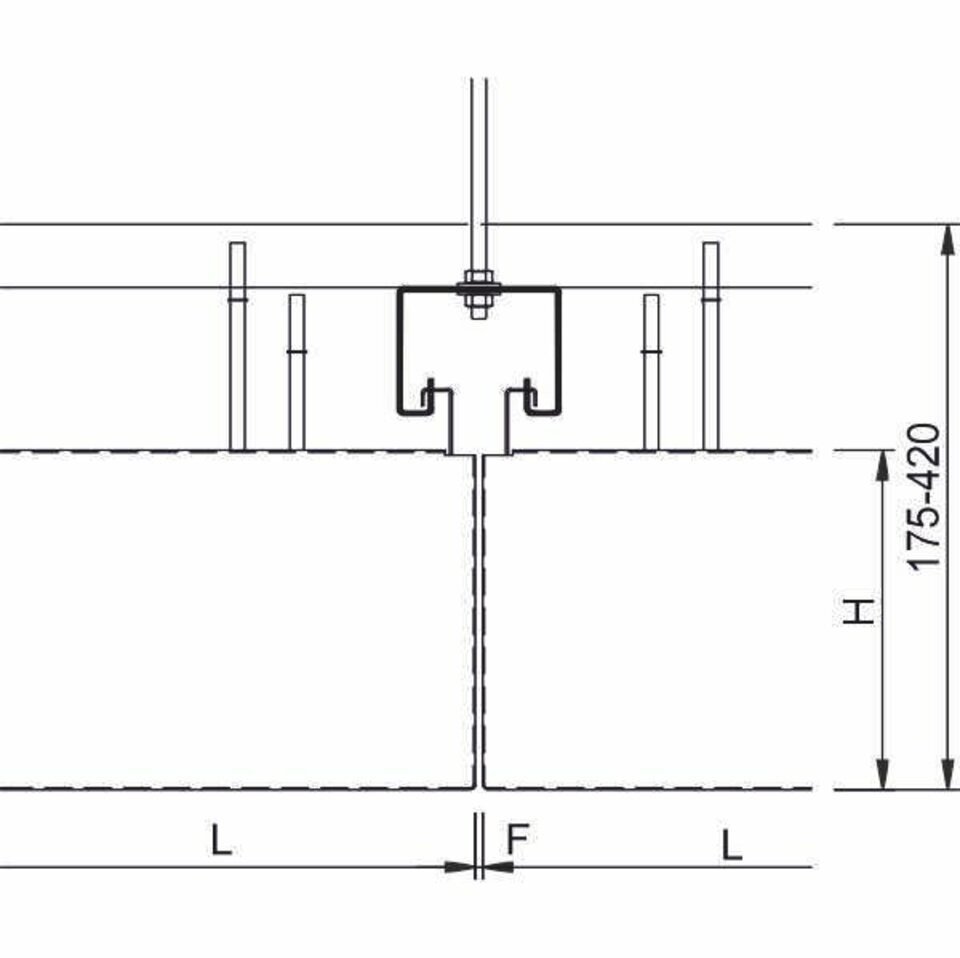
This linear baffle ceiling is especially suitable for areas with increased maintenance demands. Thanks to movable baffles, you can comfortably reach the ceiling void. The open construction guarantees high cooling capacities and variable design options. Create unique appearances in your well-tempered rooms by means of freely selectable centre distances and baffle sizes. The ceiling void between the baffles can be used for installations. The metal baffles can quickly be installed – a combination with passive baffles is also possible.

Circularity: All components can be reused/refurbished
Life Cycle Assessment: EPD according to ISO 14025 and EN 15804
Cradle to Cradle Certified®: C2C Certified® Silver
Work: Common Rooms, Facilities for Meetings, Conventions and Conferences, Stage and Studio Rooms, Office buildings, Broadcasting Rooms, Television Studios, Assembly Rooms
Businesses, Recreation and Culture: Shopping Centres, Sales Areas, Banks, Cinema and multiplex cinemas, Concert Halls, Theatres and Opera Houses, Museums and Exhibitions, Places of Assembly
Education: Library, Research Rooms, Higher education institutions and universities, Schools
Hotels and Gastronomy: Hotels and Resorts, Gastronomy
Transport: Airports, Train Stations
Public Institutions: Courts and prisons, Government and municipal buildings
Public Areas: Entrance Areas








